Construction Documents
Before we can turn your pre-application record into building permit record, a complete set of construction documents is required (also known as a "complete submittal"). To determine what a complete submittal is for your project, you can discuss your project with a Permit Technician. To get the most out of this conversation, bring a completed site plan and have a good understanding of what you are proposing to build.
“Construction documents” are forms and design documents required for building permit issuance. Each proposed development will require different construction documents based on the scope of the proposal and the location proposed to be developed. For example, a new commercial facility built in the flood zone will require more construction documents than an interior remodel of an existing residence.
There are some construction documents that you can provide, though others will need to be created by design professionals. To see which you can provide, click the specific document name below. Typically, a registered design professional is required where the proposed development exceeds prescriptive requirements or where there is a commercial use (CBC §107.1) (CRC §R301.1.3.1). If you are uncertain where to find these professionals, the Humboldt Builders Exchange Referral Guide is a good place to start your search.
Design Documents
Design documents are a type of construction document that is NOT provided by the County. Some design documents may be prepared by the applicant and others must be created by a design professional. Below is a list of design documents that could be required for your project. They are roughly organized from most common to least common. Review each design document below to see if it will be required for your project.
Forms
Forms are a type of construction document that is provided by the County. Most forms may be completed by the applicant, but some must be completed by a licensed contractor or licensed design professional. Below is a list of forms that could be required for your project. They are roughly organized from most common to least common. Review each form below to see if it will be required for your project (download link is included).
If either of the below statements are true for your project, you will need a site plan.
- I'm permitting a structure that is new, existing, or an addition.
- I’m permitting a new or existing generator, ground mount PV system, propane tank, water tank, or similar.
What is a site plan? A site plan shows to scale the size and location of new construction and existing structures on the site, distances from lot lines, the established street grades, and the proposed finished grades in accordance with an accurate boundary line survey (CBC §107.2.6). Additionally, and if applicable, the site plan shall show flood hazard areas, floodways, design flood elevations, streamside management areas, vegetation management area, hydrant locations, firetruck turnarounds, and firewater tanks. In the case of demolition, the site plan shall show construction to be demolished and the location and size of existing structures and construction that are to remain on the site or plot.
Who can create a site plan? A site plan may be created by the applicant. A registered design professional is required for commercial development. Please follow the Site Plan Checklist.
If any of the below statements are true for your project, you will need construction plans.
- I'm permitting a structure that is new, existing, an addition, or a remodel.
- I’m permitting a new or existing awning, fence, or similar.
- I'm permitting an addition to a deck, awning, fence, or similar.
What Are Construction Plans? Construction plans are written, graphic and pictorial documents describing the design and physical characteristics of a proposed development. Construction documents shall be legible, dimensioned, and drawn on suitable material (CBC §107.2.1). Below is a list of construction plan views that are most often required (also see our Construction Plan Checklist).
- Floor Plan – The floor plan is a bird–eye view showing the dimensions and use of each room in a structure including windows, doors, and egress windows and doors.
- Elevations – Elevation plans show the height of the proposed structure, details on the exterior walls, required building code notes, and cross section details.
- Foundation Plan * – The foundation plan shows footing details, hold downs, shear wall schedule, required building code notes, and more.
- Floor Framing Plan * – The floor framing plan shows size, type, and spacing of joists, girders, required building code notes, and mechanical fasteners.
- Braced Wall Plan * – A braced wall plan describes the structure's lateral bracing. A braced wall plan shall be provided if the proposed structure meets the requirements for a “regular building” (CRC §R301.2.2.6) and no structural calculations are provided.
- Roof Framing Plan * – Roof framing drawings show critical connections in the roof framing and detail framing members, fastener type/size, required building code notes, and mechanical fastener type and size.
- Electrical Plan – Electrical plans detail required building code notes and electrical switches, outlets, and fixtures with their configuration overlaid on a floor plan.
- Plumbing Plan – The plumbing plans will provide a layout of plumbing, show all materials and appliances used, and will include notes on related building codes.
- Mechanical Plan – Mechanical plans or heating, ventilation, and air-conditioning (HVAC) plans detail what appliances will be used and includes notes about relevant building code requirements.
* Not required for AOB permits. See AOB Dwellings for more information.
Who can create construction plans? Construction plans may be created by the applicant when following prescriptive building code and when allowed by the building official. A registered design professional is required for all commercial development.
If either of the below statements are true for your project, you will need energy calculations.
- I'm permitting a heated or cooled structure that is new, existing, or an addition.
- I’m permitting more than 25ft of ducting, a ducted forced-air unit (FAU), or a ducted refrigerant containing system.
What are energy calculations? Energy calculations are documents required to meet CA Energy Codes performance route of compliance. The energy code is concerned with the energy efficiency of a conditioned space, utility equipment, and construction assemblies. The document required prior to permit issuance is the certificate of compliance (CF1R). During construction, Certificates of Installation (CF2R) are required and, at final, Certificates of Verification (CF3R). Prior to permit issuance, all that is required is the CF1R (CA Administrative Code §10-103).
Who can create the CF1R? The applicant can take two routes to providing energy calculations: prescriptive or performance. Depending on the proposed development the CF1R may need to be registered with a HERS provider.
- Prescriptive - Use forms provided on the Energy Code Ace website at their direction.
- Performance - Use a software approved by the California Energy Commission.
* Note that both routes are technical and are typically provided by an energy consultant or licensed contractor.
If the below statement is true for your project, you will need PV (solar) Plans.
- My energy calculations specify a minimum size PV system.
What are PV (solar) Plans? Photovoltaic (PV) plans completely describe a solar system and include a site plan (with ground mount systems), roof plan views showing roof access and path, a one-line diagram, and specification sheets for all equipment used.
Who can create PV Plans? PV plans must be created by a General B, C-10, or a C-46 contractor.
If any of the below statements are true for your project, you will need fire sprinkler plans.
- I'm permitting a new residence (excluding AOB and manufactured homes).
- I'm permitting an addition to an existing structure that has a sprinkler system.
- I'm permitting an accessory dwelling unit (ADU) that is larger than 1,200-sqft OR an ADU that is on the same lot as a sprinklered primary dwelling.
What are fire sprinkler plans? Fire sprinkler plans describe size and type of sprinkler supply pipe, water supply calculations, and shutoff locations.
Who can create fire sprinkler plans? A sprinkler system must be designed by a C-16 contractor or a fire protection engineer.
Structural calculations will not be required to start a record, but may be required if your design exceeds prescriptive requirements of the building code or when determined to be required by the building official (CBC §107.1) (CRC §R301.1.3.1).
What are structural calculations? Structural calculations determine size, spacing, and type of structural members required.
Who can create structural calculations? Structural calculations must be produced by a registered design professional.
If either of the below statements are true for your project, you will need a grading plan.
- I'm permitting new or existing grading of 50 cubic yards or more (cut and fill)
- I’m permitting a new or existing grading in a flood zone, wetland, or area of high geologic instability.
What is a Grading Plan? A grading plan describes strategic removal and placement of earth material. In general, a grading plan is required when moving more than 50 cubic yards of cut and fill (HCC §331-14(d)).
A soils report will not be required to open a record, but may be required at pre-site or plan check. Generally speaking, soils reports are required for building sites with high slopes (HCC §332-1), high seismic activity, and related hazards (HCC §336-5 Table 1). This Soils Report Calculator can be used to see if a soils report might be required for your development, however, the requirement for a soils report ultimately depends on the judgment of the building official and their deputies.
The image above is a Web GIS snippet showing the Seismic Safety layer and layer boxes that need to be selected to make it visible. The "Hazards" layer group will also need to be checked. If your parcel is in a "high instability" zone you may need a soils report.
The image above is a Web GIS snippet showing the percent slope and layer boxes that need to be selected to make it visible. The "Hazards" layer group will also need to be checked. If you are building on a slope greater than 15% you will likely need a soils report (HCC §332-1).
What is a soils report? A soils report is an engineer’s analysis of a soil to be graded or soil that will be supporting a structure. It will provide required footing depth, foundation assemblies, and other recommendations based on the quality of soil.
Who can create a soils report? An R1 soils report must be provided by a registered geologist (HCC §336-5(a)) and an R2 soils report must be provided by a registered geologist or a registered geotechnical engineer (HCC §336-5(b)).
If the below statement is true for your project, you will need truss calculations in your construction plans.
- I'm using engineered trusses.
What are truss calculations? Truss calculations describe the roof framing of a proposed structure and are required whenever trusses are used.
Who can create truss calculations? Trusses shall be designed by a registered design professional (CRC §R802.10.2).
If the below statement is true for your project, you will need a flood elevation certificate.
- I'm permitting a structure in the flood zone that is new, existing, or an addition.
The above Web GIS snippet shows the boundary of 100 year flood zone and the layers that need to be checked make it visible.
What is an FEC? An FEC is a document that establishes a structure's base flood elevation, minimum floor elevations, and other design requirements to protect against a likely flood event. New construction and substantial improvement of any structure in a special flood hazard area (SFHA) will require a structure specific FEC and shall have the lowest floor elevated to one (1) foot above the base flood elevation (HCC §335-5(a)(3)(A)).
Who can create an FEC? An FEC must be created by a California licensed engineer, land surveyor, or architect.
If the below statement is true for your project, you will need a no-rise engineer certification.
- I'm permitting grading and/or a structure in the floodway that is new, existing, or an addition.
The Web GIS picture above shows the floodway layer (yellow hatch) and the checkboxes that need to be ticked to make this layer visible.
What is an no-rise certification? A no-rise certification is documentation provided by a California licensed engineer that the project will not not result in any increase in flood levels during the occurrence of the base flood discharge (HCC 335-6).
Who can create a no-rise certification? A no-rise certification must be created by a California licensed engineer.
If the below statement is true for your project, you will need an engineers structural letter.
- I'm permitting an existing structure (excluding AOB and manufactured homes).
What is an engineers structural letter? An engineers structural letter is a signed and stamped statement from an engineer certifying that a structure is safe. They are typically required when permitting an existing structure that can't be inspected structurally.
Who can create an engineers structural letter? Structural calculations must be produced by a registered design professional.
If the below statement is true for your project, you will need a septic design.
- I'm permitting a new or existing on-site waste disposal system.
What is a septic design? A septic design describes a proposed on-site waste disposal system.
Who can create a septic designs? The Humboldt Environmental Health division takes the lead on on-site waste disposal system. Contact them about who is allowed to create these designs.
All projects that require a permit will require a building application.
What is the purpose of the building application? The purpose of the building application is to document the applicant’s scope of work.
Who can complete the building application? The applicant may complete the building application.
If the below statement is true for your project, you will need a CWMP.
- I'm permitting a new structure, an addition, or a remodel.
What's the purpose of the CWMP? The purpose of a CWMP is to identify and outline the methods to be used as the minimum requirements for construction waste management. In other words, the CWMP describes what you will do with the waste you create from construction.
Who can create a CWMP? The applicant can complete the CWMP.
If the below statement is true for your project, you will need to complete a sediment & erosion control form.
- I'm permitting grading or a structure that is new or an addition (ineligible projects shall provide a site specific erosion control plan).
What's the purpose of the sediment & erosion control form? The purpose of the sediment & erosion control form is to ensure awareness and compliance with the grading and erosion control requirements set forth in County Code. This form outlines "Best Management Practices" regarding sediment and erosion control during construction activity.
Who can complete the sediment & erosion control form? The applicant may complete the survey form.
If the below statement is true for your project, you will need the MWELO form.
- I'm permitting a structure that is new or an addition.
What is the purpose of the MWELO form? MWELO documentation provides designs for new and renovated landscapes. It is a statewide water conservation law concerned with the efficient use of water. MWELO documentation is required when more than 500 square feet of landscaped area is proposed. See the MWELO – General Handout and the Resource Library for more information.
Who can complete the MWELO form? The prescriptive MWELO documentation can be completed by the applicant, but the performance MWELO documentation must be completed by a licensed landscape architect or licensed landscape contractor.
If the below statement is true for your project, you will need to complete a survey form.
- I'm permitting a new structure, an addition, or grading.
What's the purpose of the survey form? The purpose of the survey form is to ensure awareness and compliance with setback requirements set forth in County Code.
Who can complete the survey form? The applicant may complete the survey form.
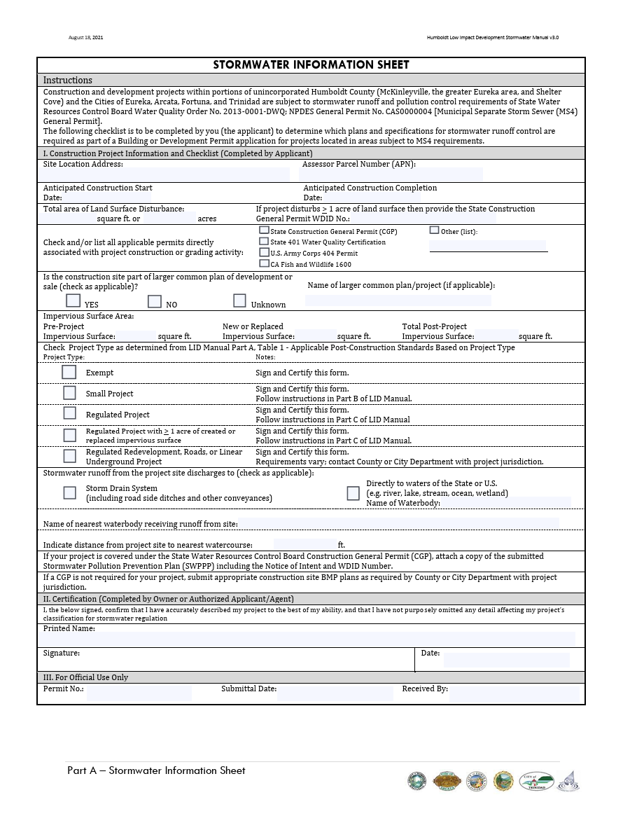
If the below statement is true for your project, you will need MS4 documentation.
- I'm permitting a structure that is new or an addition in an MS4 area.
- I'm permitting a remodel, siding repair, re-roof or asphalt resurfacing in an MS4 area (Stormwater Info Sheet only).
The picture above is a Web GIS snippet showing the MS4 layer and the layer checkboxes that must be ticked to make it visible.
What's the purpose of the MS4 form? MS4 documentation addresses the hazard that stormwater and pollution pose to denser populated areas. It requires designs which allow sufficient site drainage from storm events within denser populated areas. A primary concern is the square feet of impervious areas created from development. For example, the buildings footprint and concrete driveways create a lot of space where water cannot penetrate into the earth. The more impervious area created, the more drainage features are required. Portions of McKinleyville, the greater Eureka area, and Shelter Cove are subject to MS4 documentation. See Part A – Applicability page 1 and 2 of the Humboldt Low Impact Development Stormwater Manual to see when and what is required for MS4 documentation
Who can complete the MS4 form? “Small” and “Exempt” projects may be completed by the applicant. “Regulated Projects” must be completed by a registered design professional.
If the below statement is true for your project, you will need the SRA Fire Safe Exemption form*.
- I'm permitting a structure that requires reduced property line setbacks in a State Responsibility Area (SRA).
The above image is a Web GIS snippet showing what areas are in the SRA, Local Responsibility Area (LRA), and the Federal Responsibility Area (FRA). It also shows the Web GIS layers that must be turned on to see if your parcel is in the SRA.
What is the SRA Fire Safe Exemption form? The purpose of this form is to show that the parcel will have the same practical effect towards providing defensible space per current fire safe regulations (see Wildfire Hazard).
Who can complete this form? The applicant may complete the SRA Fire Safe Exemption form.
Download SRA Fire Safe Exemption Form
*Special Note: If the parcel to be developed is less than 1-acre AND you are in a moderate or low fire hazard severity zone, you may be granted this exception using the SRA Standard Exception for Small Parcels form.
If the below statement is true for your project, you will need as-built forms.
- I'm permitting an existing structure with concealed electrical, mechanical, and/or plumbing systems.
What's the purpose of as-built forms? The purpose of the as-built forms is to provide a path forward for permitting existing construction that includes mechanical, electrical, and/or plumbing systems that can't be inspected. By having California licensed contractors complete as-built forms you can retroactively permit existing construction. Your contractor may state that the existing structure complies as-is OR they may require certain corrections to be made.
Who can complete as-built forms? Only presently California licensed contractors may complete as-built forms.
If the below statement is true for your project, you will need to comply with the requirements of the demolition permit requirements form.
- I am demolishing or removing an existing structure, part of an existing structure, or debris.
What is the demolition permit requirements form? It is a form that outlines the requirements for a demolition permit. A demolition permit (“Demo Permit”) is required for the demolition or removal of any existing structure or part of an existing structure. Whether or not a permit was obtained to build the structure, a Demo Permit is still required. Typical job types include demolition of a whole or partial structure, removal of a non-permitted structure, and removal of fire damaged structures.
Who can complete the demolition permit requirements form? Follow the requirements within the form. Depending on the scope of the job a licensed professional may be required.
If the below statement is true for your project, you will need to complete an ag-exempt letter of intent.
- I'm permitting a structure that is meant for agriculture use only (new, existing, addition, or remodel).
What's the purpose of the ag-exempt letter of intent? The purpose of the ag-exempt letter of intent is to document that applicants intend to use the structure strictly for agricultural purposes.
Who can complete the ag-exempt letter of intent? The applicant may complete this form.
If the below statement is true for your project, you will need to complete a residential accessory greenhouse exemption.
- I'm permitting a structure that is meant for residential agriculture use only (new, existing, addition, or remodel).
What's the purpose of the residential accessory greenhouse exemption? The purpose of this form is to document that applicants intend to use the structure strictly for residential agricultural purposes.
Who can complete the residential accessory greenhouse exemption? The applicant may complete this form.
If the below statement is true for your project, you will need a Substantial Improvement form.
- I'm substantially remodeling (or adding to) a structure in the flood zone that existed prior to July 19th, 1982.
The above Web GIS snippet shows the boundary of the 100 year flood zone and the layers that need to be checked to see the flood zone layer.
What's the purpose of the Substantial Improvement form? The purpose of the Substantial Improvement form is to document the cost of your proposed project. If it is over 50% of the market value of the structure before improvement (without land value), then it will be considered a substantial improvement and you will have to elevate the entire structure 1ft above base flood elevation.
Who can complete the Substantial Improvement form? The applicant can complete the Substantial Improvements form. Note that a California licensed real estate professional or professional appraiser will be required to asses the value of the existing structure.
If the below statement is true for your project, you will need the construction hardship form.
- I'm doing a light remodel to an existing commercial building and want to apply for reduced path of travel requirements per CBC 11B-202.4 exception 8.
What is a construction hardship form? The construction hardship form demonstrates that a proposed commercial remodel is small enough in scope to qualify for reduced path of travel requirements.
Who can complete this form? The applicant may complete the construction hardship form.
If the below statement is true for your project, you will need to complete an owner-builder notice form.
- I'm permitting my project as an owner-builder. I will not be hiring a General Building Contractor and will be doing the work myself and/or coordinating subcontractors.
What's the purpose of an owner-builder notice form? The purpose of this form is to allow the property owner to declare themselves as the builder and make them aware of the risks and responsibilities involved.
Who can complete the owner-builder notice form? The applicant may complete this form.
If the below statement is true for your project, you will need load calculations.
- I'm permitting a residential electric service rated over 200 amps.
What are load calculations? The purpose of load calculations is to determine the proposed electrical loads are enough to necessitate a service rated over 200 amps.
Who can complete the load calculations form? The applicant may complete the load calculation form.
If the below statement is true for your project, you will need to complete a Notice of Restriction form.
- I'm permitting a new AOB primary residence.
- I'm permitting a new AOB accessory dwelling unit.
- I'm permitting a new detached bedroom.
- I'm permitting a new junior accessory dwelling unit (JADU).
What's the purpose of a Notice of Restriction form? The purpose of this form is to give notice to the applicant of a deed restriction associated with their proposed development as well as to let the applicant declare awareness of this restriction.
Who can complete the owner-builder notice form? The applicant is required to complete this form.
Download AOB Primary Notice of Restriction form
Download AOB ADU Notice of Restriction form
Download Detached Bedroom Notice of Restriction form
Download Junior Accessory Dwelling Unit Notice of Restriction form
Other
This is not an exhaustive list of construction documents. Other forms, calculations, and/or designs may be required depending on the scope of your development. You can find additional forms at our Building Division | Forms & Handouts page. You will be notified by staff if more documents are required for your building application.